The Boxwood
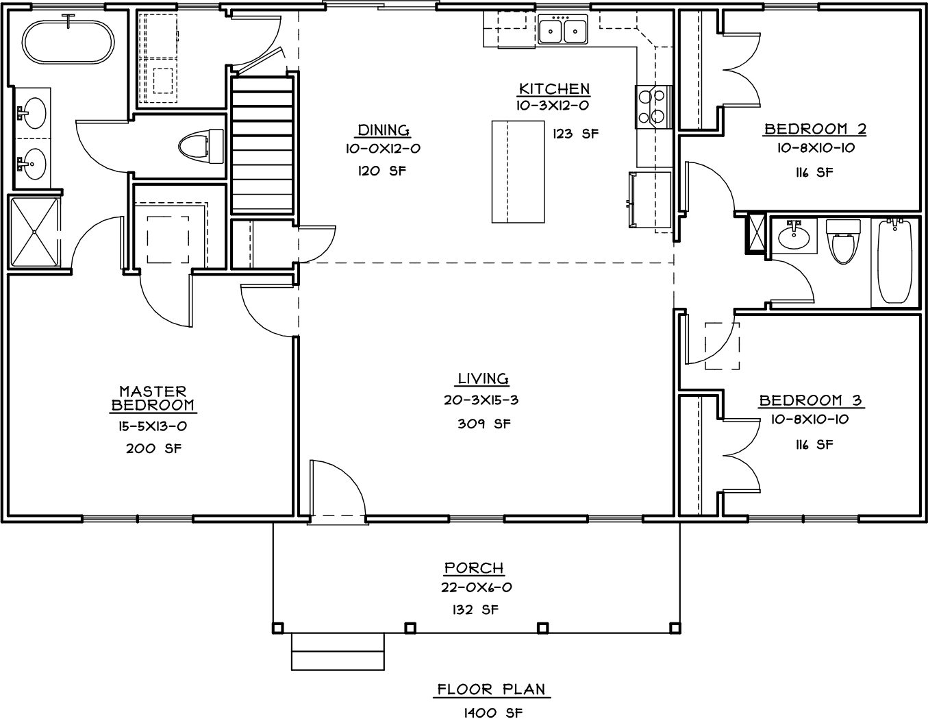
The Boxwood is our most popular model. Simple, yet elegant, this modern reinterpretation of country-chic is the perfect home in which a young family can grow. With 1,400 square feet, the Boxwood’s open floor plan creates a bright and airy atmosphere. Each home is expertly fashioned with a luxury master bathroom, farmhouse sink, exposed natural beams, window planter boxes and much more to give it a uniquely custom feel. Additional options include a basement (unfinished or finished), two-car detached garage, and a 16×16 wooden deck.
We can build this home for you on your lot or help you find a lot to build on in Fredericksburg, Stafford, Hanover, Caroline, Spotsylvania, Orange, King George, Louisa, Culpeper, and Fauquier.
Floor Plan
- 3 Bedrooms
- 2 Full Bathrooms
- 1,400 Square Feet Above Ground
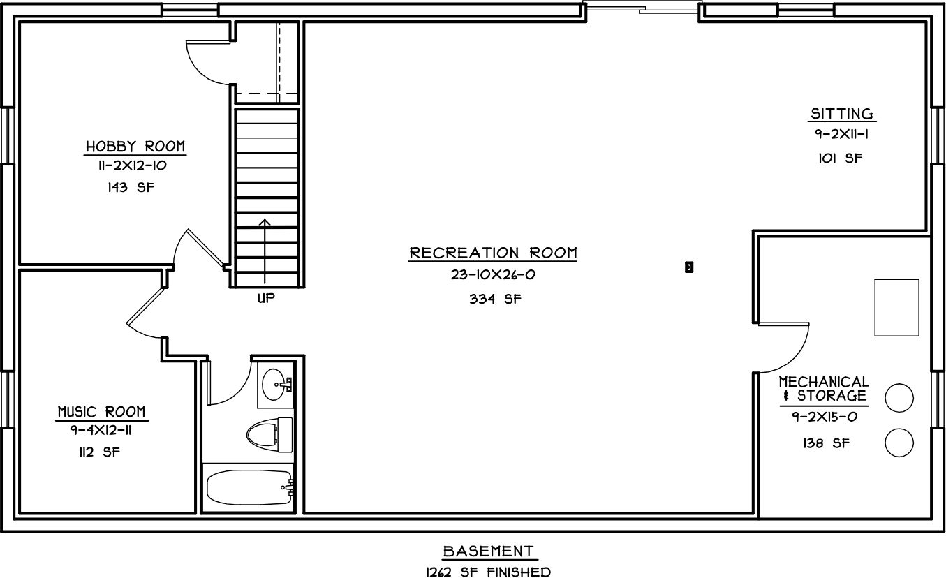
- 1,400 Square Feet Below Ground (Unfinished Basement)
- 1,262 Sq Ft Finished Basement
Virtual Walk-thru
Style My Boxwood Home
Our homes have 3 exterior look options and 4 interior style options. When you build an ironwood home you can pick what style matches you the most.
Click below to change the filter to see the different styles available.
We can build this home for you on your lot or help you find a lot to build on in Spotsylvania, Caroline, Stafford, Orange, Culpeper and King George counties.






